Ukuran kandang babi dari besi, Kandang babi Modern, Konstruksi kandang babi, Ukuran normal kandang babi, Kandang babi dari bambu, Kandang babi yang baik, Kandang Babi dari kayu, Desain kandang babi induk, Model kandang babi, Kandang babi dari beton, Contoh desain kandang babi, Lantai Kandang Babi,


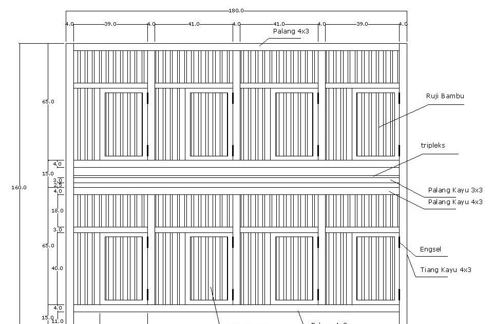
43+ Desain Kandang Babi Penggemukan - Sekarang Anda bisa membuat desain kandang yang terlihat fantastis dan menarik perhatian siapapun yang melihatnya. Tentu membutuhkan suatu perencanaan atau perancangan yang dilakukan sebelum pembuatan suatu objek, sistem, komponen. Dalam membuat desain kandang, seorang desainer seindahnya sudah memiliki ide, visi, pesan dan rancangan terkait desain yang akan dibuatnya, tidak terkecuali desain kandang babi penggemukan. Tidak hanya mempertimbangkan aspek efektivitas dan fungsionalnya saja, namun kita juga perlu memiliki sebuah pertimbangan tentang sebuah estetika yang bisa anda dapatkan dari desain, model dan motif dari berbagai referensi. Tidak terkecuali inspirasi tentang desain kandang babi penggemukan juga harus anda pelajari.

Apakah anda tertarik dengan desain kandang?, dengan gambar dibawah ini, semoga bisa menjadi pilihan desain untuk anda.Simak ulasan terkait desain kandang dengan judul artikel 43+ Desain Kandang Babi Penggemukan berikut ini.

cara ternak kambing Ternak Ayam Petelur cutting edge
cara ternak kambing Ternak Ayam Petelur cutting edge . Sumber Gambar : mon-petit-jardin-passion.blogspot.com

25 Desain Kandang Kambing Terbaik Terbaru Rekomendasi
1 3 2021 Kandang babi harus memiliki luas antara 2 5 m dan setidaknya 10 m tempat terbuka sehingga ia bisa bergerak bebas Ada beberapa cara untuk meningkatkan ruang gerak babi di antaranya Keluarkan babi dari kandang dan tempatkan di kandang terpisah yang lebih besar

Peternakan Babi  Modern Di Indonesia Tentang Kolam
Peternakan Babi Modern Di Indonesia Tentang Kolam . Sumber Gambar : contohternak.blogspot.com

3 Cara untuk Menggemukkan Babi wikiHow
9 10 2021 Desain Kandang Sapi Desain kandang sapi yang baik tak jauh beda dengan desain kandang kambing Memerlukan kandang yang bersih dan terawat dan tentunya kering Karena semua hewan yang berbulu pasti rentan sekali dengan penyakit koreng Hal ini wajar dan seringkali terjadi pada hewan peliharaan yang tempat atau kandangnya jarang dibersihkan